改修により施設の魅力を向上します ~公園橋編~
事例①





改修前











改修状況




改修後
事例②



改修前





改修後
事例③






改修前



改修後
改修により施設の魅力を向上します ~公園橋編~
事例①





改修前
既存施設の部位毎における劣化状況は、支承部=致命的な劣化は見られない。主桁部=部分的な劣化が見られる。床板・高欄=著しい劣化が見られる。という結果でした。各部位が劣化に至った原因を検証し、改修後には劣化が進行しにくい施設となるよう、素材や工法の検討を行います。



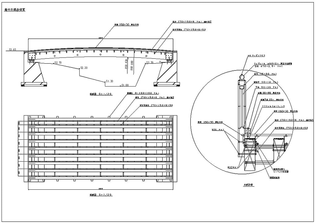
現場調査の結果をもとに、改修詳細図を作成します。今回の場合は、支承部=現状のまま、主桁部=劣化部を削り取りの後、防腐剤塗布及び防水処理。根太=新設。床板・高欄=全撤去のうえ新設としました。使用する各部材は耐久性に配慮し、アルミや再生木材を選択します。








改修状況




改修後
橋の両側に足場を設置し、高欄と床板を撤去します。露出した主桁の腐食部を削り取った後、防腐剤塗布及びコーキング処理の上、アスファルトルーフィングで防水を徹底します。耐久性の高いアルミ製の根太を主桁の側面に固定し、再生木材の床板を貼り付け、耐久性の高いアルミと再生木材をミックスした景観性の高い高欄を組付けて完成です。
事例②



改修前





改修後
事例③






改修前



改修後